https://s.kaskus.id/images/2018/10/30/7809776_201810301110130931.png Ada yg bisa nomer 2 yg a? (2a). mencari orde persamaan kelajuan reaksi, lihat bernilai tetap (pada nomor 1 dan 3), naik menjadi 2 kali dan lajunya menjadi 4 kali lebih cepat. maka orde adalah : 2^n = 4 n = 2 lihat berni
meskipun orang tua saya masih lengkap, saya merasakan kesepian, keheningan, keasingan dan kesedihan Agan wicaksana.agung dan menjadi bekal saya pada suatu saat nanti saya akan mengalaminya. Semoga almarhun orang tuan agan wicaksana.agung diampuni semua dosanya, ditempatkan pada sisi Allah swt yan...
https://s.kaskus.id/images/2018/07/23/10286243_20180723081736.jpg😊 udah di jawab di https://www.kaskus.co.id/thread/574736169a095157338b4568/problem-solving---tempat-bertanya-pr-kaskuser-sd-smp-sma---part-4/59 ada titipan soal sebagai berikut : https://s.kaskus.id/images/2018/07/30/542249_2
https://s.kaskus.id/images/2018/07/29/9783876_20180729114531.jpg Gan tolong bantu jawabannya ini apa aja ya....makasih Yang bawahnya itu harusnya waktu per detiknya. Anggap aja laju reaksinya linear rA = N1-N2/t = (45-15) molL-1/35 s Cmiiw Asumsi : orde reaksi molekul A dan B masing-masing a
https://s.kaskus.id/images/2018/07/23/10286243_20180723081736.jpg😊 Karena ditanyakan hasil perkalian akar-akarnya, maka gunakan cara yang sedikit primitif. (x² + x + 2013)(x² + x + 2014) = 2 (x² + x + 2013)(x² + x + 2014) = 1 * 2 x² + x + 2013 = 1 x² + x + 2012 = 0 x1 * x2 = 2012 dan x²...
kurang paham saya, kenapa jadi minus Perhatikan bentuk : J = - ∫ x d(cos x) d(cos x) = - sin x dx Harap diingat, turunan pertama dari cosinus x adalah negatif sinus x. Jika diteruskan, J = - ∫ x (- sin x) dx J = ∫ x sin x dx Bentuk terakhir ini sama dengan bentuk soalnya. Jadi sekarang paham
https://s.kaskus.id/images/2018/07/20/9060372_201807200915460724.png Tolong dengan penjelasan dong J = ∫ x sin x dx J = - ∫ x d(cos x) J = -x cos x + ∫ cos x dx J = -x cos x + sin x + C Wik makasih banget gan Kalau ada lagi yang mau ditanyakan, silakan.
Letaknya selalu di tumpuan gan? Oh ya kalau plat lantai pembagian tumpuan lapangan gmna ya gan? Terus sama mau nanya pertanyaan melenceng, kalau di perhitungan volume besi, overlap dihitung ga ya gan? Kalo misal ada contoh perhitungan volume besi + cad nya saya boleh minta ga 😅, yang overlap kal
https://s.kaskus.id/images/2018/07/18/9783876_20180718085923.jpg Gan saya nanaya dong panjang proyeksi TA pada TBC perhatikan gambar di bawah ini, https://s.kaskus.id/images/2018/07/19/542249_20180719060449.png proyeksi TA pada bidang TBC adalah panjang ET, ET² = AT² - (AD/2)² ET² = 12² - (1/2
maaf baru bisa jawab sekarang. nomor batangnya gak jelas, fotonya agak burem. untuk sementara, penomoran elemennya seperti di bawah ini, jika ada yang berbeda penomorannya, harap disesuaikan posisinya. penyelesaian dengan metoda matriks, inputnya sebagai berikut : matriks kekakuan globalnya : ...
https://s.kaskus.id/images/2018/05/15/6205580_201805151224570054.png Mohon pembahasannya gan pertanyaan sudah lebih dari dua bulan belum ada yang jawab, Pada saat saklar S ditutup, tidak ada perubahan kuat arus listrik sebelum dan sesudah amperemeter. https://s.kaskus.id/images/2018/05/17/1586520_
trus mau tanya gan, kalo misalnya tegangan geser di badan batang (misalnya τ max atau τ ) gimana gan? maaf banyak bertanya gan hehehe tegangan geser maksimum terjadi di bagian center dari penampang profil. https://s.kaskus.id/images/2018/07/12/542249_20180712082617.png momen inersianya adalah
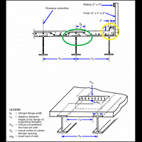
gan mau nanya untuk penulangan plat lantai kenapa ada bagian yang di tekuk sperti trapesium ya gan ? masih kurang paham apakah yang dimaksud adalah tulangan seperti ini ? https://s.kaskus.id/images/2018/07/12/542249_20180712113414.gif yang dilingkari hijau adalah tulangan tarik pelat lantai untuk
makasih gan, mau nanya lagi nih gan hehehe https://s.kaskus.id/images/2018/07/12/8692464_20180712090204.jpg untuk yang bagian 1.D itu gmna ya gan? karena faktor tekuk diabaikan, maka menghitung diameter minimumnya adalah : σ izin = Fmaksimum/luas penampang 0.35 * 240 = 6.625 * 10^3/(0.25 π D²)
Sorry gan agak OOT mau nanya, ada yang pernah berkutat di voided slab? itu maksud angka dalam span itu apa ya? seperti untuk tipe 150.8.5-12 span 7,5 m ada angka 3,2. itu menunjukan apa gan? trims https://s.kaskus.id/images/2018/07/12/1460993_20180712120228.JPG sumber brosur wika beton 150.8.5-12
maaf gan mau nanya lagi tegangan geser izin minimum harus dilihat dari tegangan geser maksimum yang terjadi. setelah diketahui semua reaksi perletakannya maka gaya-gaya dalam bisa dicari. besar dan lokasi gaya geser maksimum bisa ditentukan.= yang digunakan 6,625 kN atau 3,875 kN? cari titik ber...
panjang CD = 1.5 meter akan dicari gaya-gaya reaksi perletakannya, ΣM di A = 0 P * 1 - Vb * (1 + 1.5) = 0 100 * 1 - Vb * (1 + 1.5) = 0 Vb = 40 N ΣM di B = 0 Va * (1 + 1.5) - P * 1.5 = 0 Va * (1 + 1.5) - 100 * 1.5 = 0 Va = 60 N ΣFx = 0 Ha + Q = 0 Ha = - Q Ha = - 40 N menghitung gaya-gaya batan...
https://s.kaskus.id/images/2018/07/09/8692464_20180709110601.JPG ini sdh betul gk gan? Va = 1/4 * (3 P + 10 q) = 1/4 * (3 * 8 + 10 * 0.25) = 6.6250 kN Fc = 0 Vd = 1/4 * (P + 30 q) = 1/4 * (8 + 30 * 0.25) = 3.8750 kN karena Fc = 0 maka gaya geser di BC adalah : Vx = 6.6250 - 8 Vx = -1.3750 kN
mencari momen di titik Mab, Mba, Mbc,Mcb, Mcd, Mce, Mdc. tolong bantuannya dong gan https://s.kaskus.id/images/2018/06/27/10256243_20180627053353.jpeghttps://s.kaskus.id/images/2018/06/27/10256243_20180627053408.jpeg (8). misalkan x = NIM dua digit di belakang koma, 0 ≤ x ≤ 99 lakukan analisi...
https://s.kaskus.id/images/2018/06/24/8692464_20180624020628.jpg apakah gaya pada perletakan yg saya gambrakan sdh benar gan? itu contoh gaya pendel menurut yg saya baca dari materi gan jawaban ini sekalian menjawab pertanyaan yang bawah ya. Mau nanya lagi gan: Σ M di lantai (bawah titik A)