gan mau nanya donk pemasangan atap asbes yg bagus kemiringan berapa ya ? soalnya ane mau masang kemiringan 30 derajat rasanya terlalu tinggi mohon bantuannya Asbes idealnya 15-20 gan, kalo 30 itu genteng mestinya
Wah sama2x org surabaya gan, ane coba bantu ya..langsung ane tulis di quotes wow ada threadnya, sayang dulu pas bokap bangun ngga nemu thread ini :berdukas.. dulu pada takut pakai konsultan rumah mahal. mau tanya tentang rumah kecil yg mau dikontrak, cmn terkendala dana juga. btw sebelumnnya ane bl
Masih mendingan dia gan.. cb agan liat partai sang jenderal dgn mencuri start kampanye jauh2 hari dgn atas nama HKTI lah apa lah... udh brp uang yg dibuang untk kampanye sang jenderal...??? Blm lg black campagn untk menyerang capres lain.. Mana hasilnya...??? Yg ane tau jokowi bkn mencalonkan dir
:capedes anjrit ini di daerah ane neh...tiwas sempet mikir mo nyoblos dia, ane yg maenannya sotosop kena tipu nih :ngakak
ideal space kosong setau ane belum ada regulasinya, karena kalo kata ane mubah hukumnya :ngakak..karena ente pepetin bgt dng tetangga jg gpp.. tp pertimbangan ngasi space kosng selain untuk safety juga membantu sirkulasi penghawaan dengan perletakn taman. Tp kalo ane ya gan, biasanya kalo ndesai...
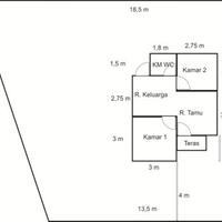
sorry kalo salah kamar, krn ane bingung, pertanyaan ini masuk ke renovasi ato design. ane ada rencana mau ambil KPR subsidi, ukuran tanahnya 10 x 15, karena ada kelebihan tanah, jadinya ukuran lebar di depan 13,5, di belakang 18,5 dan panjang tetap 15m. denah rumahnya gak bisa diubah, begitu juga p
Mau tanya dong, kalau ada kamar mandi yang kiri kanan atas bawah ga ada jendela dan mau masukin cahaya alami gimana ya? Kepikiran mau pake Solatube tapi maknyos mahalnya. Apa ada alternatif lain yang ga ribet mesti bersihin rutin? Bantu ya gan, kalo sekedar memasukkan cahaya dan agan takut diintip
rumah baru :) trims buat agan hary.r yg udah bantu jawab di thread sebelume.. tapi masa iya labanya 100%. misal gan rab dia 100jt, trus ane garapin sendiri cuman 50jt, berarti laba dia tembus 100% gan. malah bisa 200%. ane aja bikin 50jt, dia makan lagi 50jt apa ga 100% tuh labanya.. nah ya itu o
Bagus kok kata ane.. sebagai yg sering maen NFS n ane sering namatin serinya Bagi ane cukup sukses : 1. Disini ditampilin semua aksi kebut2xan, mulai dari siang malam, jalan, hutan, pasir dsb sesuai dengan dunia gamesnya yg memang mencakup itu semua 2. Drift, Time Attck, circuit, sampe hot pursui...
Ane bantu jawab gan...tp ente perlu nonton lbh dr 1x kayaknya :D gan ane udh ntn tapi banyak yg ganjel nih, soalnya jg ane dtgnya telat :sorry misi awalnya rama di suruh ke penjara apa ya? hubungannya uco,bangun,bejo,reza Jadi begini. rama tuh nyamar, sama si cok simbara dia disuruh nyamar untuk
ane br nonton td gan..sempet GR sih td waktu beli tiket..td beli 3 tiket.. mbaknya bilang mas diatas 18th lo... jwb ane "masa sih mbak saya kyk umur 17 th, saya kan kepala 3"...kata mbaknya "maksudnya dr 3 tiket itu semuakan umurnya hrs diatas 18 th yg ntn" :ngakak:hammer Oke ...
serius gan? kebetulan ane pengen punya website sendiri..ane bisa desain sih, selama ini ane pake kayak blog, wordpress dsb, karena ane bener2x awam proses bikin website itu sampe bener2x onlen..soalnya kalo punya situs sendirikan usaha ane kesannya bonafit :ngakak
Alasan klasik kalau bicara ini itu kewenangan pemerintah pusat, sekarang adalah tugas beliau menyelesaikan permasalahan yang ada.Beliau sumpah jabatan di atas kitab suci, beliau dipilih karena dipercaya warga jakarta mampu menyelesaikan masalah2 di Jakarta. Intinya warga percaya akan kemampuan beli
Gan plafon kayu yg bagus sama murah apa ya? Kalo ada kasih tau dong toko yg recomended yg di surabaya :o yg kayu apanya ini? rangkanya ato penutupnya? kalo rangkanya mending ganti hollow gan, lebih awet ga kena rayap
ane kasi solusi cerdas yg ga pake ngebunuh gan : Cerein istri agan :ngakak abisnya agan nikahin istri agan tuh buat apa...hadeehh, ga layak lo jd imam keluarga